Open Office | Nestlé

Natural Resources & sustainable development

Phase: Complete Project •  Year: 2019 •  Style: Contemporary •  Area: 1300 sq.m •  Client:  Nestlé Bulgaria •  Location: Sofia, Bulgaria •  Interior Design: VOOOD •  Project Management: PD Design Studio •  Visuals: TallboxPhotography: Petko Nekezov

05.jpg
MATERIAL BOARD & RELATIONS

MATERIAL BOARD & RELATIONS

COLOR_giff.gif

Social meeting and

healthy work environment

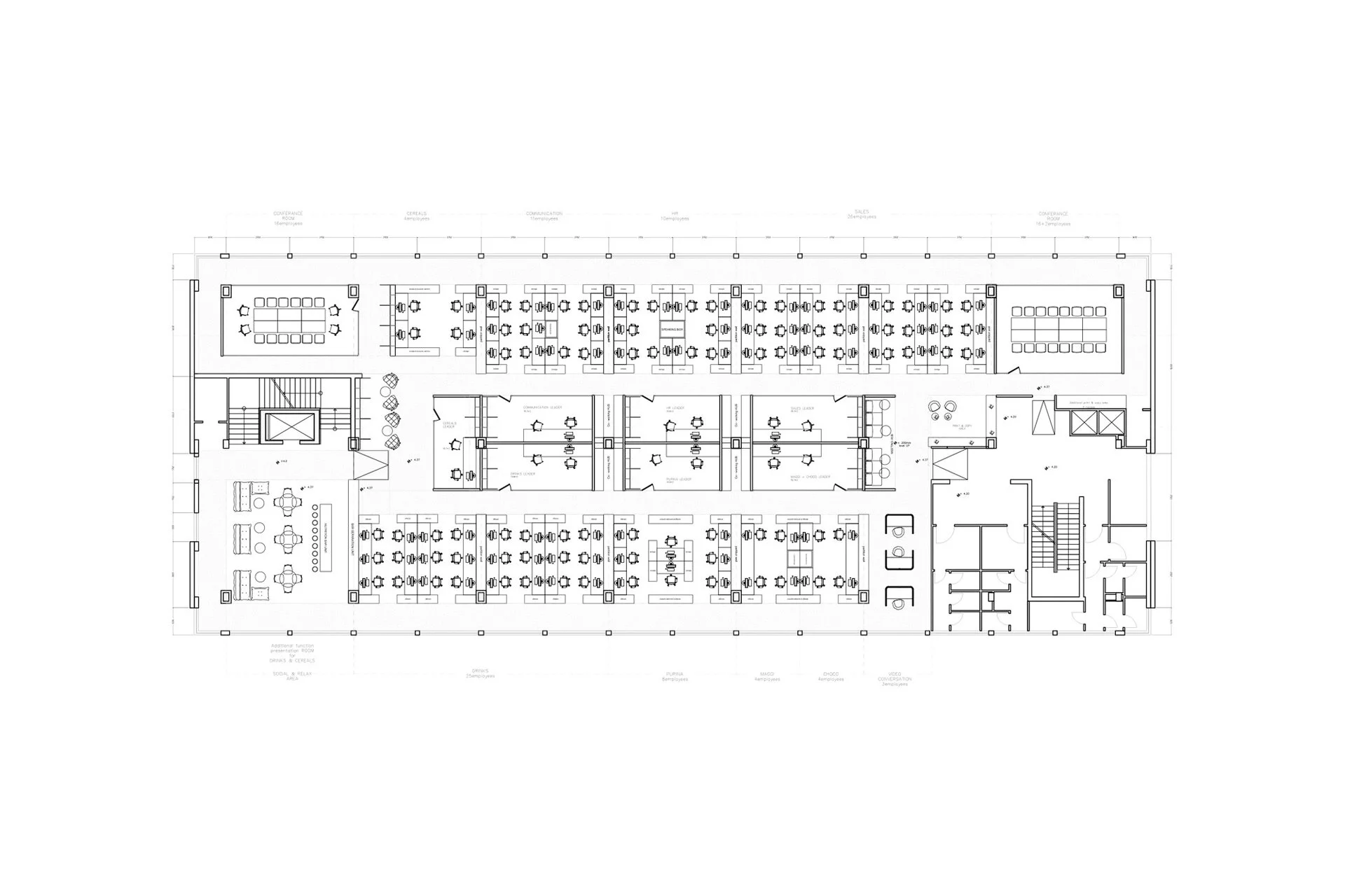
Brainstorming hubs, phone boots and video conferance zone, relaxing, modern seating areas and a well-equipped food court provide more casual meetings and employee conveniences. Nutrition bar as well as presentation snack for client satisfaction.

nestle-drawing.jpg

Chance to create

Along side with PD design team we won a chance to create and design this open office space. Inspired by natural resources which company use to produce their goods we develop natural color palette and then incorporated in interior environment! A healthy work environment is fostered by operable windows for natural ventilation and lighting, and the interior’s climate is controlled through radiant heating and low velocity fans.

P9250168.jpg

EVOLVING AMBIENCE

attitude to design and detail

Previous
Previous

Boyana Residence

Next
Next

Andromeda 8